Description
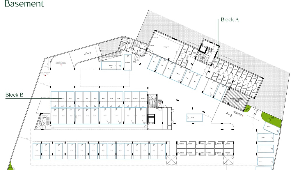
Located in one of Limassol’s fastest-growing areas, this cutting-edge development offers easy access to top destinations like the City of Dreams Mediterranean Resort & Casino, MY MALL, Limassol Greens golf resort, Limassol Marina, and excellent schools. The project combines suburban comfort with urban convenience, just minutes from the city center. This gated residential development includes 2 modern buildings with a total of 46 apartments, of which 20 two-bedroom units and 26 one-bedroom units. Each apartment features spacious interiors, private balconies, laminate parquet floors, and stylish kitchens. Residents enjoy access to a large communal pool, landscape gardens, a fully equipped gym, and basement parking.
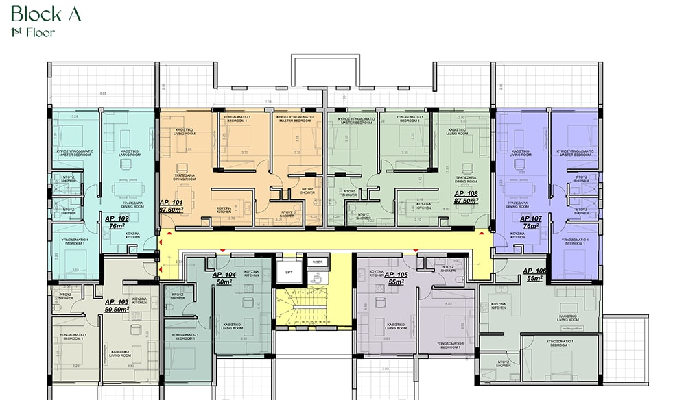
Block A:
| Block | Unit | Floor | Bedrooms | Bathrooms | Indoor Area (m²) | Covered Veranda (m²) | Storage (m²) | Total Area (m²) | Price (€) | Price (€) /m² |
|---|---|---|---|---|---|---|---|---|---|---|
| Block A | G03 | GF | 1 | 1 | 57 | 12.5 | 6 | 69.5 | 205.000 | 2,949 |
| Block A | G04 | GF | 1 | 1 | 54 | 13 | 6 | 73 | 190.000 | 2,835 |
| Block A | A104 | 1st | 1 | 1 | 54 | 13 | 6 | 73 | 205.000 | 4.258 |
| Block A | A105 | 1st | 1 | 1 | 55 | 13 | 6 | 74 | 195.000 | 4.353 |
| Block A | A106 | 1st | 1 | 1 | 62 | 13 | 6 | 81 | 233.000 | 4.522 |
| Block A | A107 | 1st | 2 | 2 | 76 | 22 | 6 | 104 | 290.000 | 4.739 |
| Block B | G1 | GF | 1 | 2 | 50.5 | 13 | – | 63.5 | 195.000 | 3.071 |
| Block B | G2 | GF | 1 | 2 | 50 | 13 | – | 63 | 195.000 | 3.095 |
| Block B | G3 | GF | 1 | 2 | 50 | 13 | – | 63 | 195.000 | 3.095 |
| Block B | G4 | GF | 1 | 2 | 58 | 13 | – | 71 | 230.000 | 3.239 |
| Block B | G5 | GF | 1 | 1 | 55 | 17 | – | 72 | 220.000 | 3.056 |
| Block B | G6 | GF | 2 | 2 | 83.5 | 17 | 6 | 106,5 | 299.000 | 2.808 |
| Block B | G7 | GF | 2 | 2 | 81.5 | 17 | 6 | 104,5 | 292.000 | 2.794 |
| Block B | G8 | GF | 2 | 2 | 81.5 | 17 | 6 | 104,5 | 292.000 | 2.794 |
| Block B | G9 | GF | 2 | 2 | 81.5 | 17 | 6 | 104,5 | 292.000 | 2.794 |
| Block B | G10 | GF | 2 | 2 | 81.5 | 17 | 6 | 104,5 | 292.000 | 2.794 |
| Block B | G11 | GF | 2 | 2 | 82.7 | 19 | 6 | 107,7 | 296.000 | 2.748 |
| Block B | G12 | GF | 1 | 1 | 57.7 | 19 | 6 | 82,7 | 199.000 | 2.406 |
| Block B | G13 | GF | 1 | 2 | 61 | 16 | – | 77 | 232.000 | 3.013 |
| Block B | G14 | GF | 1 | 2 | 62 | 21 | – | 83 | 228.000 | 2.747 |
| Block B | G15 | GF | 1 | 2 | 62 | 17 | – | 79 | 228.000 | 2.886 |
| Block B | B101 | 1st | 1 | 2 | 50,5 | 13 | – | 63,5 | 205.000 | 3.228 |
| Block B | B102 | 1st | 1 | 2 | 50 | 13 | – | 63 | 205.000 | 3.254 |
| Block B | B103 | 1st | 1 | 2 | 50 | 13 | – | 63 | 205.000 | 3.254 |
| Block B | B104 | 1st | 1 | 2 | 58 | 13 | – | 71 | 220.000 | 3.099 |
| Block B | B105 | 1st | 1 | 1 | 55 | 17 | – | 72 | 204.000 | 2.833 |
| Block B | B106 | 1st | 2 | 2 | 83,5 | 17 | 6 | 106,5 | 305.000 | 2.864 |
| Block B | B107 | 1st | 2 | 2 | 81,5 | 17 | 6 | 104,5 | 295.000 | 2.823 |
| Block B | B108 | 1st | 2 | 2 | 81,5 | 17 | 6 | 104,5 | 295.000 | 2.823 |
| Block B | B109 | 1st | 2 | 2 | 81,5 | 17 | 6 | 104,5 | 295.000 | 2.823 |
| Block B | B110 | 1st | 2 | 2 | 81,5 | 17 | 6 | 104,5 | 295.000 | 2.823 |
| Block B | B111 | 1st | 2 | 2 | 82,7 | 19 | 6 | 107,7 | 299.000 | 2.776 |
| Block B | B112 | 1st | 1 | 1 | 57,7 | 19 | 6 | 82,7 | 220.000 | 2.660 |
| Block B | B113 | 1st | 1 | 2 | 61 | 16 | – | 77 | 232.000 | 3.013 |
| Block B | B114 | 1st | 1 | 2 | 62 | 21 | – | 83 | 235.000 | 2.831 |
Block B:
| Block | Unit | Floor | Bedrooms | Bathrooms | Indoor Area (m²) | Covered Veranda (m²) | Storage (m²) | Total Area (m²) | Price (€) | Price (€) /m² |
|---|---|---|---|---|---|---|---|---|---|---|
| Block B | G01 | GF | 1 | 1 | 50.5 | 13 | – | 63.5 | 248,850 | 4,928 |
| Block B | G02 | GF | 1 | 1 | 50 | 13 | – | 63 | 248,850 | 4,977 |
| Block B | G03 | GF | 1 | 1 | 50 | 13 | – | 63 | 248,850 | 4,977 |
| Block B | G04 | GF | 1 | 1 | 50 | 13 | – | 63 | 269,850 | 5,397 |
| Block B | G05 | GF | 1 | 2 | 55 | 10 | – | 65 | 281,400 | 5,116 |
| Block B | G06 | GF | 2 | 2 | 81.5 | 17 | 6 | 104.5 | 363,300 | 4,458 |
| Block B | G07 | GF | 2 | 2 | 81.5 | 17 | 6 | 104.5 | 344,400 | 4,226 |
| Block B | G08 | GF | 2 | 2 | 81.5 | 17 | 6 | 104.5 | 344,400 | 4,226 |
| Block B | G09 | GF | 2 | 2 | 81.5 | 17 | 6 | 104.5 | 344,400 | 4,226 |
| Block B | G10 | GF | 2 | 2 | 81.5 | 17 | 6 | 104.5 | 344,400 | 4,226 |
| Block B | G11 | GF | 2 | 2 | 83.7 | 19 | 6 | 108.7 | 355,950 | 4,253 |
| Block B | G12 | GF | 1 | 1 | 57.7 | 19 | 6 | 82.7 | 261,450 | 4,531 |
| Block B | G13 | GF | 2 | 2 | 61 | 16 | – | 77 | 299,250 | 4,906 |
| Block B | G14 | GF | 2 | 2 | 83.7 | 21 | – | 104.7 | 404,250 | 4,830 |
| Block B | G15 | GF | 2 | 2 | 83.7 | 17 | – | 100.7 | 404,250 | 4,830 |
| Block B | 101 | 1st | 1 | 1 | 50.5 | 13 | – | 63.5 | 249,900 | 4,949 |
| Block B | 102 | 1st | 1 | 1 | 50 | 13 | – | 63 | 247,800 | 4,956 |
| Block B | 103 | 1st | 1 | 1 | 50 | 13 | – | 63 | 247,800 | 4,956 |
| Block B | 104 | 1st | 1 | 1 | 50 | 13 | – | 63 | 262,500 | 5,250 |
| Block B | 105 | 1st | 1 | 2 | 55 | 10 | – | 65 | 288,750 | 5,250 |
| Block B | 106 | 1st | 2 | 2 | 81.5 | 17 | 6 | 104.5 | 344,400 | 4,226 |
| Block B | 107 | 1st | 2 | 2 | 81.5 | 17 | 6 | 104.5 | 344,400 | 4,226 |
| Block B | 108 | 1st | 2 | 2 | 81.5 | 17 | 6 | 104.5 | 344,400 | 4,226 |
| Block B | 109 | 1st | 2 | 2 | 81.5 | 17 | 6 | 104.5 | 344,400 | 4,226 |
| Block B | 110 | 1st | 2 | 2 | 81.5 | 17 | 6 | 104.5 | 344,400 | 4,226 |
| Block B | 111 | 1st | 2 | 2 | 83.7 | 19 | 6 | 108.7 | 354,900 | 4,240 |
| Block B | 112 | 1st | 1 | 1 | 57.7 | 19 | 6 | 82.7 | 261,450 | 4,531 |
| Block B | 113 | 1st | 2 | 2 | 61 | 16 | – | 77 | 299,250 | 4,906 |
| Block B | 114 | 1st | 2 | 2 | 83.7 | 21 | – | 104.7 | 404,250 | 4,830 |
| Block B | 115 | 1st | 2 | 2 | 83.7 | 17 | – | 100.7 | 404,250 | 4,830 |
*VAT Standard Rate 19%. Reduced Rate 5%. Terms and conditions apply.
Limassol is a vibrant city on the southern coast of Cyprus. Known for its beautiful beaches, rich history, and lively atmosphere, it offers a perfect blend of modern amenities and traditional charm. Explore historical landmarks, enjoy the picturesque promenade, and experience the vibrant nightlife. With its warm climate and stunning coastline, Limassol is a destination for everyone.
















