Description
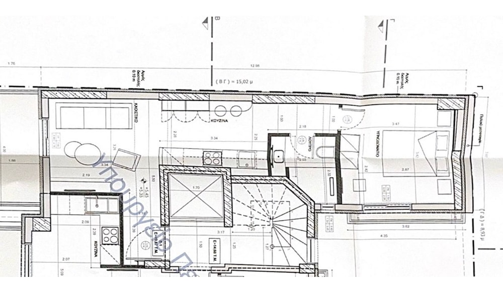
Discover this brand-new 1-bedroom apartment located on the 2nd floor of a newly constructed building (2024). Spanning 50 m², the residence offers a smart layout with wooden floors, security door, and elevator access, ideal for urban professionals or investors. Enjoy outdoor comfort with a 7.25 m² front balcony and a 1.60 m² rear balcony, perfect for relaxing or entertaining. The apartment comes unfurnished, but includes a fully equipped kitchen with electrical appliances, air conditioning, and lighting fixtures—ready for immediate use. Additional features: 1 bathroom, underground parking space, private storage room (3.70 m²), energy-efficient aluminum frames. Located in a prime area of Athens, this property combines modern design, convenience, and investment potential. Ideal for personal use or rental income.
Pagrati, situated in the heart of Athens, blends tradition and modernity seamlessly. With its tree-lined streets, bustling squares, and vibrant atmosphere, this district offers a unique urban experience. Pagrati is known for its rich cultural scene, with numerous cafes, restaurants, and shops, making it a favorite among locals and visitors alike. Its central location provides easy access to Athens’ historic landmarks and green spaces, such as the National Gardens, offering a perfect balance between city life and natural retreats. Whether exploring its bustling streets or dining in one of its tavernas, Pagrati exudes energy and character.
















